Главная / Общество / Семь ФАПов установят в Саратовской области за 28 миллионов

Семь ФАПов установят в Саратовской области за 28 миллионов

26 августа 2022 - 17:12

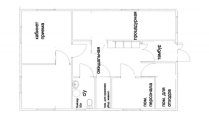
В Саратовскую область ожидается поставка модульных конструкций фельдшерско-акушерских пунктов. Их заказывает региональный минздрав. Конструкции стоят 28 миллионов. Заявки выставлены на портале госзакупок. ФАПы должны установить до 1 ноября этого года.

Новы модульные конструкции появятся в селе Горелый Гай Ивантеевского района; в селах Черный Затон и Подлесное Хвалынского района; поселке Пригородный Петровского района; поселке Прудовой Ершовского района; селах Лепехинка и Карпенка Краснокутского района.

Последние новости
12 мая 2026