Главная / Общество / У исторического моста в Петровске благоустроят парк, солярий и установят памятник купцу

У исторического моста в Петровске благоустроят парк, солярий и установят памятник купцу

26 марта 2021 - 09:23

В этом году в Петровске пройдут работы по благоустройству территории, прилегающей к железнодорожному мосту через Медведицу.

Администрация Петровского района Саратовской области объявила конкурс на проведение этих работ, информация есть на сайте госзакупок.

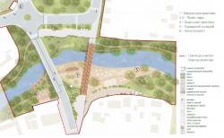
Объектом проектирования является комплексное благоустройство общественной территории. Территория благоустройства Петровска расположена в центральной части города, в квартале, ограниченном улицами Московской, Большой Набережной, Ломоносова и рекой Медведицей.

С западной стороны над проектируемой территорией частично проходят два моста через Медведицу, один из которых (железный мост) является объектом культурного наследия регионального значения. Мост построен в 1901 году.

На проектируемой территории планируется разместить следующие функциональные зоны: прогулочная аллея со смотровой площадкой; медиапространство со сценической площадкой; площадку для отдыха и съемок; теневой парк; городской солярий; спортивные и игровые площадки для детей разных возрастов. На площадке для отдыха и съемок установят памятник купцу, качели и парковые скамьи.

Между мостами организуют прогулочную аллею со смотровой площадкой и площадку для легких каркасных киосков для уличной торговли. Здесь будет организована парковка для 10 машин. Вдоль улицы Большая Набережная организуют гостевую автостоянуа для 26 машин.

Стоимость работ оценивается в 46,5 миллионов рублей. Благоустройство намечено закончить до 1 октября 2021 года.

Последние новости
14 мая 2026
13 мая 2026